Proizvodna zgrada - proizvodnja i punjenje vode
Babotok, Bjelovar
Čelična montažna konstrukcija
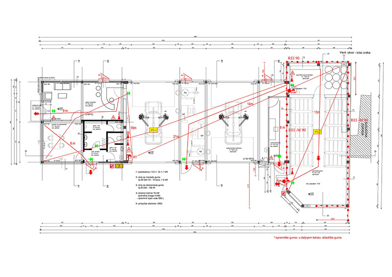
Poslovna zgrada - vulkanizerska radionica Jendriš
Vrbovec
Montažna čelična konstrukcija
ZOO vrt grada Zagreba,
volijera za afričke ptice
Ovlašteni smo za izradu elaborata zaštite od požara prema važećim hrvatskim propisima, EU-HR normama te prema svim važećim austrijskim TRVB smjernicama, OIB smjernicama 2.0., 2.1 i 2.2. te američkim NFPA normama sa proračunima vremena evakuacije.
Izradili smo do sada veći broj elaborata na projektima industrijskih pogona, jednostavnih i visokoregalnih skladišta, škola, dječjih vrtića, stambenih i apartmanskih zgrada, poslovnih i administrativnih zgrada i drugih vrsta građevina.
Preliminarno rješavamo eventualne probleme u dogovoru s nadležnim požarnim inspektoratom i brinemo se za građevinu do primopredaje i tehničkog pregleda.
Za iste građevine izrađujemo i elaborate Zaštite na radu u suradnji sa nadležnim stručnjacima.
Kineziološki fakultet Sveučilišta u Zagrebu
Elaborat ZOPa kao dio Glavnog projekt za dogradnju dizala
Dječji vrtić Vugrovec Donji, Zagreb
Lagana čelična montažna konstrukcija
Rekonstrukcija građevine u objekt za potrebe prirodne baštine
Biograd n/M
Dječji vrtić I. B. Mažuranić, Zagreb
modularni sistem
Visestambena zgrada, Vodice
Tel: +385 1 2728 678
hr | en
ADRESA
TEL
MOBIL
Arhitekti Ratkajec d.o.o.
Vukotinovićeva 7, 10 340 Vrbovec, Croatia
+385 1 2728 678
+385 91 798 1858
info@arhitekti-ratkajec.hr
RADNO VRIJEME
OIB No.
RAČUN
Pon. – Pet.: 08:30-17:00
Sub. po dogovoru
OIB: 71252824850; MB: 2300826
ZABA - Žiro račun
HR64 2360 0001 1019 8896 1
Arhitekti-Ratkajec d.o.o. 2022
copyright
Page design and all content copyright by Arhitecti-Ratkajec d.o.o. except graphical elements designed by Freepik: